Ufficio in affitto

Verona, Via silvestrini - Zai
€ 1.500 / mese
3 locali 3 locali
200 Mq 200 Mq
1 bagno 1 bagno

Ufficio in affitto

Verona, Via silvestrini - Zai

Descrizione annuncio

ZAI VERONA SUD - AFFITTASI

IMMOBILE USO UFFICIO AL PIANO TERRA CON INGRESSO INDIPENDENTE E N. 2 POSTI AUTO

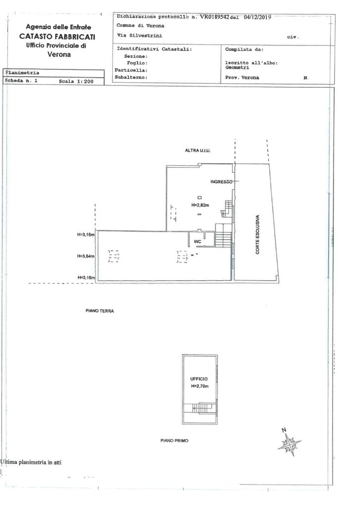
DESCRIZIONE IMMOBILE:

L'ufficio si trova al piano terra con ingresso indipendente e n. 2 posti auto privati.

La superficie è di mq 180 con servizi. La distribuzione interna è in n. 2 ampi locali e ufficio.

FINITURE IMMOBILE:

Gli uffici sono molto luminosi e rifiniti bene. Le stanze sono molto ampie e permettono la massima flessibilità lavorativa.

Gli impianti sono autonomi.

NESSUNA CONDOMINIALITA'

UBICAZIONE:

La palazzina uffici si trova a 500 mt. dal Casello di Verona Sud e molto comoda all'ingresso della Tangenziale.

Mostra tutto

Nelle vicinanze

Trasporto pubblico Trasporto pubblico
stazione di Verona Porta Nuova
stazione di Verona Porta Nuova
1,7 Km
Viale del Lavoro 36 II
Viale del Lavoro 36 II
150 m
Viale del lavoro fr.30 I
Viale del lavoro fr.30 I
170 m
Ricariche auto elettriche Ricariche auto elettriche
AGSM Viale del Lavoro - Piazzale Fiera
620 m
Tesla Supercharger Verona - Crowne Plaza
640 m
AGSM - Via Righi
750 m
Hotel San Pietro
980 m
Centro Commerciale ADIGEO
1,1 Km
Scuole Scuole
Scuola Primaria Angela Busti
730 m
Scuola Media Mario Mazza
760 m
Scuola Primaria Massimo D'Azeglio
800 m
Scuola Primaria Lenotti Tullio
860 m
Scuole
930 m
Farmacia Farmacia
Farmacia Zai
720 m
La Mia Farmacia
770 m
Farmacia Roma
850 m
Farmacia Santa Teresa
950 m
Farmacia Comunale Tomba
1,0 Km
Ospedali Ospedali
Policlinico "Giambattista Rossi"
1,7 Km
Supermercati Supermercati
Aldi
250 m
Esselunga
260 m
LIDL
910 m
La Buona Terra
980 m
Migross Supermercato
980 m
Negozi Negozi
petit jardin
1,2 Km
Il Girasole
1,5 Km
La Pral
1,5 Km
Brugi
1,6 Km
Mavecon
1,6 Km
Bar Bar
Berfi's Srl
550 m
Bar
660 m
Interzona
730 m
Mad' in Italy
760 m
Interno 5
860 m
Ristoranti Ristoranti
Pizzeria Guglielmo Vuolo
80 m
Doppio Malto
390 m
Frèkt Arrosticini
500 m
Tutti i gusti
670 m
Ristorante Pizzeria Grotta Azzurra
730 m
Mostra tutto

Caratteristiche

Rif.:
61173400
Piano:
1 di 1 (Piano terra)
Posti auto:
2
Condizionamento:
Autonomo
Ascensore:
No
Riscaldamento:
Autonomo
Mostra tutto
Prezzo Prezzo
€ 1.500 / mese
Spese annue Spese annue
€ 0

Classe Energetica

E
E
E
E
E
E
E
E
E
EP globale non rinnovabile:
234.98 kW h/m² anno
EP globale rinnovabile:
9.09 kW h/m² anno
EP invernale del fabbricato:
EP estiva del fabbricato:
Anno di costruzione:
2019
Riscaldamento:
Autonomo
Tipo impianto:
Ad aria
Tipo alimentazione:
Metano

Ti interessa visionare l'immobile?

Fissa un appuntamento  Fissa un appuntamento

Richiedi informazioni

Clicca su Leggi per aprire l'informativa
* Questi campi sono obbligatori
Affiliato
Punto Quattro Srlu
Viale Delle Nazioni (uscita casello Verona Sud), 19 37135 Verona (VR)

Il nostro staff


  • Gianluigi Visuri
    Affiliato
Viale Delle Nazioni (uscita casello Verona Sud), 19 37135 Verona (VR)
Zona: Verona ZAI - Verona Sud - S.G. Lupatoto - Castel D'Azzano - Vigasio - Buttapietra
Mostra su mappa
Orari: LUN-VEN 8.30/12.30 14.30/19.00 - SAB 9.00/12.30
Affiliato
Punto Quattro Srlu
Viale Delle Nazioni (uscita casello Verona Sud), 19 37135 Verona (VR)

2026 Tecnocasa Franchising S.p.A. - P. IVA 08365160152 - Via Monte Bianco 60/A 20089 Rozzano (MI). Ogni agenzia ha un proprio titolare ed è autonoma. Privacy policy | Policy utilizzo | Cookie policy